Commercial Office space for Lease Sector 44 Gurgaon
Furnished Commercial Office space in Independent Built Up Gurgaon
| Furnishing: | Type: | Sectors: | Size: | Per Sq.Ft. Price for Lease: | Expected : |
|---|---|---|---|---|---|
| Furnished | Commercial Office space | Sector 44 | 5300 Sq.Ft. | 75 | Ready to move |
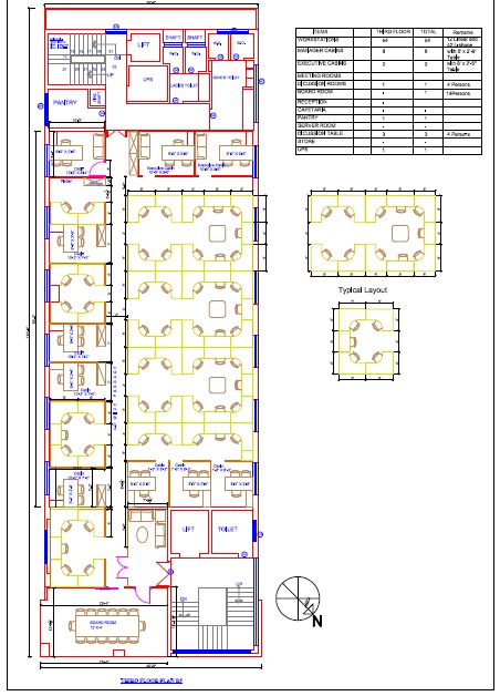
Overview
Fully Furnished Commercial Office Space Available For Lease, Sector 44 Gurgaon
Specifications:-
Tower and Location : Independent Building, Sector 44
Available Area : 5300 Sq.ft
Floor : 3rd
Rent : 75 / Sq.ft
Fully furnished
Air conditioned
Power back up
Front glass faced
North east facing
Vastu Compliance
Valet parking service
Cafeteria on sharing basis
One kilometer from metro station,
All equipments covered under amc
Rear separate washrooms on all floors
Available from : Immediate
Furnishing Details : -
Reception area
Conference room (14 seats) - 1
Work stations L-Shape 5'*5'/5'*4' = 42
Work stations Linear 4'*2' = 12
Cabins wall high 10'-6"*8' = 2
Cabin wall high 10'-2"*8'-4" = 1
Cabins 5' high, 7'-6"*8'-3" = 3
Cabins 5' high, 7'-6"*8'-3" = 4
Ups room
Pantry
Area
| Total Area | Facing | Floor | Near By |
|---|---|---|---|
| 5300 Sq.Ft. |
Site Plan

Feature
A/C
Power Backup
Security 24x7
Park
Club/Swimming Pool
Shopping Plaza
Car Park
Club/Health Center
Lift
Near By School
Near By Metro Station
Airport
Other Properties In Sector 44
-
Sector 44 (
3000
Sq.Ft. ) -
Furnished for
Rent -
Sector 44,
Gurgaon -
Sector 44 (
5000
Sq.Ft. ) -
Furnished for
Rent -
Sector 44,
Gurgaon -
Sector 44 (
7000
Sq.Ft. ) -
Unfurnished for
Rent -
Sector 44,
Gurgaon -
Sector 44 (
10000
Sq.Ft. ) -
Unfurnished for
Rent -
Sector 44,
Gurgaon -
Sector 44 (
7000
Sq.Ft. ) -
Unfurnished for
Rent -
Sector 44,
Gurgaon -
Sector 44 (
5000
Sq.Ft. ) -
Furnished for
Rent -
Sector 44,
Gurgaon -
Sector 44 (
10000
Sq.Ft. ) -
Furnished for
Rent -
Sector 44,
Gurgaon -
Sector 44 (
20000
Sq.Ft. ) -
Furnished for
Rent -
Sector 44,
Gurgaon -
Sector 44 (
15000
Sq.Ft. ) -
Unfurnished for
Lease -
Sector 44,
Gurgaon -
Sector 44 (
1000
Sq.Ft. ) -
Furnished for
Rent -
Sector 44,
Gurgaon -
Global Business Square (
19250
Sq.Ft. ) -
Unfurnished for
Rent -
Sector 44,
Gurgaon -
Sector 44 ( 5200 Sq.Ft. ) - Furnished for Rent - Sector 44, Gurgaon
-
Independent Built Up (
31000
Sq.Ft. ) -
Unfurnished for
Lease -
Sector 44,
Gurgaon -
Sector 44 (
60000
Sq.Ft. ) -
Semi Furnished for
Lease -
Sector 44,
Gurgaon -
Sector 44 (
3500
Sq.Ft. ) -
Furnished for
Lease -
Sector 44,
Gurgaon -
Sector 44 (
5300
Sq.Ft. ) -
Furnished for
Lease -
Sector 44,
Gurgaon -
Sector 44 (
10000
Sq.Ft. ) -
Furnished for
Lease -
Sector 44,
Gurgaon -
Sector 44 (
4400
Sq.Ft. ) -
Furnished for
Lease -
Sector 44,
Gurgaon -
Sector 44 ( 10420 Sq.Ft. ) - Furnished for Lease - Sector 44, Gurgaon
-
(
18000
Sq.Ft. ) -
Unfurnished for
Lease -
Sector 44,
Gurgaon -
Independent Built Up (
5000 - 45000
Sq.Ft. ) -
Unfurnished for
Lease -
Sector 44,
Gurgaon -
(
9500
Sq.Ft. ) -
Furnished for
Lease -
Sector 44,
Gurgaon -
(
25000
Sq.Ft. ) -
Furnished for
Lease -
Sector 44,
Gurgaon -
(
72000
Sq.Ft. ) -
Furnished for
Lease -
Sector 44,
Gurgaon -
(
5,000
Sq.Ft. ) -
Unfurnished for
Rent -
Sector 44,
Gurgaon -
Independent Built Up (
2000
Sq.Ft. ) -
Semi Furnished for
Rent -
Sector 44,
Gurgaon -
Independent Built Up (
4200
Sq.Ft. ) -
Furnished for
Lease -
Sector 44,
Gurgaon -
Independent Built Up (
4400
Sq.Ft. ) -
Semi Furnished for
Lease -
Sector 44,
Gurgaon -
Independent Built Up (
5000
Sq.Ft. ) -
Semi Furnished for
Lease -
Sector 44,
Gurgaon -
Independent Built Up (
9500
Sq.Ft. ) -
Furnished for
Lease -
Sector 44,
Gurgaon -
Independent Built Up (
9500 - 100000
Sq.Ft. ) -
Unfurnished for
Lease -
Sector 44,
Gurgaon -
Independent Built Up (
5000
Sq.Ft. ) -
Furnished for
Lease -
Sector 44,
Gurgaon -
Independent Built Up (
2000
Sq.Mtr. ) -
Furnished for
Lease -
Sector 44,
Gurgaon -
Independent Built Up (
5000
Sq.Ft. ) -
Semi Furnished for
Lease -
Sector 44,
Gurgaon -
Independent Built Up (
5000 - 35000
Sq.Ft. ) -
Furnished for
Lease -
Sector 44,
Gurgaon -
Independent Built Up (
5000
Sq.Ft. ) -
Unfurnished for
Lease -
Sector 44,
Gurgaon -
Independent Built Up (
4200
Sq.Ft. ) -
Furnished for
Lease -
Sector 44,
Gurgaon -
Independent Built Up (
3000
Sq.Ft. ) -
Unfurnished for
Lease -
Sector 44,
Gurgaon -
Independent Built Up (
7000
Sq.Ft. ) -
Unfurnished for
Lease -
Sector 44,
Gurgaon -
Independent Built Up (
3000
Sq.Ft. ) -
Furnished for
Lease -
Sector 44,
Gurgaon -
Independent Built Up (
3000
Sq.Ft. ) -
Furnished for
Lease -
Sector 44,
Gurgaon -
Independent Built Up (
5000
Sq.Ft. ) -
Unfurnished for
Lease -
Sector 44,
Gurgaon -
Independent Built Up (
5000
Sq.Ft. ) -
Furnished for
Lease -
Sector 44,
Gurgaon -
Independent Built Up (
5000
Sq.Ft. ) -
Unfurnished for
Lease -
Sector 44,
Gurgaon -
Independent Built Up (
4300
Sq.Ft. ) -
Furnished for
Lease -
Sector 44,
Gurgaon -
Independent Built Up (
4000
Sq.Ft. ) -
Unfurnished for
Lease -
Sector 44,
Gurgaon -
Independent Built Up (
55000
Sq.Ft. ) -
Unfurnished for
Lease -
Sector 44,
Gurgaon -
Independent Built Up (
9500
Sq.Ft. ) -
Unfurnished for
Lease -
Sector 44,
Gurgaon -
Independent Built Up (
22000
Sq.Ft. ) -
Unfurnished for
Lease -
Sector 44,
Gurgaon -
Independent Built Up (
5000
Sq.Ft. ) -
Furnished for
Lease -
Sector 44,
Gurgaon -
Independent Built Up (
5000
Sq.Ft. ) -
Furnished for
Lease -
Sector 44,
Gurgaon -
Independent Built Up (
10500
Sq.Ft. ) -
Furnished for
Lease -
Sector 44,
Gurgaon -
Independent Built Up (
2200
Sq.Ft. ) -
Semi Furnished for
Lease -
Sector 44,
Gurgaon -
Independent Built Up (
31000
Sq.Ft. ) -
Semi Furnished for
Lease -
Sector 44,
Gurgaon -
Independent Built Up (
50000
Sq.Ft. ) -
Unfurnished for
Lease -
Sector 44,
Gurgaon -
Independent Built Up (
6500
Sq.Ft. ) -
Furnished for
Lease -
Sector 44,
Gurgaon -
Independent Built Up (
3500
Sq.Ft. ) -
Unfurnished for
Lease -
Sector 44,
Gurgaon -
Independent Built Up (
31000
Sq.Ft. ) -
Furnished for
Lease -
Sector 44,
Gurgaon -
Independent Built Up (
6500
Sq.Ft. ) -
Furnished for
Lease -
Sector 44,
Gurgaon -
Independent Built Up (
9000
Sq.Ft. ) -
Unfurnished for
Lease -
Sector 44,
Gurgaon -
Independent Built Up (
6000
Sq.Ft. ) -
Unfurnished for
Lease -
Sector 44,
Gurgaon -
Independent Built Up (
4600
Sq.Ft. ) -
Unfurnished for
Lease -
Sector 44,
Gurgaon -
Independent Built Up (
5500
Sq.Ft. ) -
Unfurnished for
Lease -
Sector 44,
Gurgaon -
Independent Built Up (
8500
Sq.Ft. ) -
Unfurnished for
Lease -
Sector 44,
Gurgaon -
Independent Built Up (
1600
Sq.Ft. ) -
Furnished for
Lease -
Sector 44,
Gurgaon -
Independent Built Up (
1000
Sq.Ft. ) -
Furnished for
Lease -
Sector 44,
Gurgaon -
Independent Built Up (
6500
Sq.Ft. ) -
Furnished for
Lease -
Sector 44,
Gurgaon -
Independent Built Up ( 6000 Sq.Ft. ) - Unfurnished for Lease - Sector 44, Gurgaon
-
Independent Built Up (
5000
Sq.Ft. ) -
Furnished for
Lease -
Sector 44,
Gurgaon -
Independent Built Up (
2000
Sq.Ft. ) -
Furnished for
Lease -
Sector 44,
Gurgaon -
Independent Built Up (
6000
Sq.Ft. ) -
Unfurnished for
Lease -
Sector 44,
Gurgaon -
Independent Built Up (
6000
Sq.Ft. ) -
Unfurnished for
Lease -
Sector 44,
Gurgaon -
(
6500
Sq.Ft. ) -
Furnished for
Lease -
Sector 44,
Gurgaon -
Independent Built Up (
2000
Sq.Ft. ) -
Unfurnished for
Lease -
Sector 44,
Gurgaon -
Independent Built Up (
3500
Sq.Ft. ) -
Unfurnished for
Lease -
Sector 44,
Gurgaon -
Independent Built Up (
3500
Sq.Ft. ) -
Unfurnished for
Lease -
Sector 44,
Gurgaon -
Independent Built Up (
5000
Sq.Ft. ) -
Furnished for
Lease -
Sector 44,
Gurgaon -
Independent Built Up (
2500
Sq.Ft. ) -
Furnished for
Lease -
Sector 44,
Gurgaon -
Independent Built Up (
20000
Sq.Ft. ) -
Unfurnished for
Lease -
Sector 44,
Gurgaon -
Independent Built Up (
4800
Sq.Ft. ) -
Unfurnished for
Lease -
Sector 44,
Gurgaon -
Independent Built Up (
4800
Sq.Ft. ) -
Unfurnished for
Lease -
Sector 44,
Gurgaon -
(
9100
Sq.Ft. ) -
Furnished for
Lease -
Sector 44,
Gurgaon -
Independent Built Up (
5000
Sq.Ft. ) -
Unfurnished for
Lease -
Sector 44,
Gurgaon -
Independent Built Up (
6000
Sq.Ft. ) -
Semi Furnished for
Lease -
Sector 44,
Gurgaon -
Independent Built Up (
4000
Sq.Ft. ) -
Furnished for
Sale -
Sector 44,
Gurgaon -
Independent Built Up (
44000
Sq.Ft. ) -
Unfurnished for
Lease -
Sector 44,
Gurgaon -
Independent Built Up (
4515
Sq.Ft. ) -
Furnished for
Lease -
Sector 44,
Gurgaon -
Independent Built Up (
2800
Sq.Ft. ) -
Furnished for
Lease -
Sector 44,
Gurgaon -
Independent Built Up (
4500
Sq.Ft. ) -
Furnished for
Lease -
Sector 44,
Gurgaon -
Independent Built Up (
9000
Sq.Ft. ) -
Furnished for
Lease -
Sector 44,
Gurgaon -
Independent Built Up (
6000
Sq.Ft. ) -
Furnished for
Lease -
Sector 44,
Gurgaon -
(
5500
Sq.Ft. ) -
Unfurnished for
Lease -
Sector 44,
Gurgaon -
(
4600
Sq.Ft. ) -
Furnished for
Lease -
Sector 44,
Gurgaon -
Independent Built Up (
5200
Sq.Ft. ) -
Furnished for
Lease -
Sector 44,
Gurgaon -
Independent Built Up ( 13000 Sq.Ft. ) - Furnished for Lease - Sector 44, Gurgaon
-
Independent Built Up ( 13000 Sq.Ft. ) - Furnished for Lease - Sector 44, Gurgaon
-
Independent Built Up (
11000
Sq.Ft. ) -
Furnished for
Lease -
Sector 44,
Gurgaon -
SCO Plots ( 4500 Sq.Ft. ) - Furnished for Lease - Sector 44, Gurgaon
-
Unitech Commercial Tower ( 4000 Sq.Ft. ) - Unfurnished for Sale - Sector 44, Gurgaon
-
Independent Built Up (
10000
Sq.Ft. ) -
Furnished for
Lease -
Sector 44,
Gurgaon -
Independent Built Up (
25000
Sq.Ft. ) -
Furnished for
Lease -
Sector 44,
Gurgaon -
SCO Plots (
5200
Sq.Ft. ) -
Furnished for
Lease -
Sector 44,
Gurgaon -
Independent Built Up ( 5600 Sq.Ft. ) - Furnished for Lease - Sector 44, Gurgaon
-
Independent Built Up (
10500
Sq.Ft. ) -
Furnished for
Lease -
Sector 44,
Gurgaon -
Independent Built Up ( 5300 Sq.Ft. ) - Furnished for Lease - Sector 44, Gurgaon
Are You Interested in this Property?
Please fill in your details below and we will get in touch with you shortly








